● 三偏心硬密封蝶閥流體阻力小,密封面受沖擊小,不改變介質流向,不擾流,圧降小,啟閉力矩小,適用壓力溫度范圍廣。
● 采用三偏心斜錐面密封,利用蝶板擺動接觸密封、密封啟閉無磨隕,關閉時具有越關越緊,密封性能越可靠,開啟確保密封面完全脫離接觸,確保密封面不損傷。
● 當閥門開啟時,蝶板與閥座在關閉時瞬間接觸,利用蝶板偏心迅速脫離閥座,降低了密封副的磨隕,磨擦力矩小,開啟靈活。偏心錐面使閥門在開啟或關閉時蝶板能通過閥座內孔,實現接觸密封。另外,錐形蝶板的旋轉半徑大于密封副接觸位置的旋轉半徑,故蝶板在閥門關閉時將出現越關越緊,能夠實現自鎖,防止蝶板過位。
● 密封面選擇D507MO和鈷基硬質臺金等材料釗作,具有耐腐蝕、耐高溫、使用壽命長的特點,克服了高溫使用時熱膨脹閥門易泄漏的缺點。
● 蝶板密封圈采用軟硬層疊式金屬片,它具有彈性密封和軟硬多層次密封兼容的雙重特點,無論在抗腐蝕、耐高溫的情況下,均有良好的密封性。
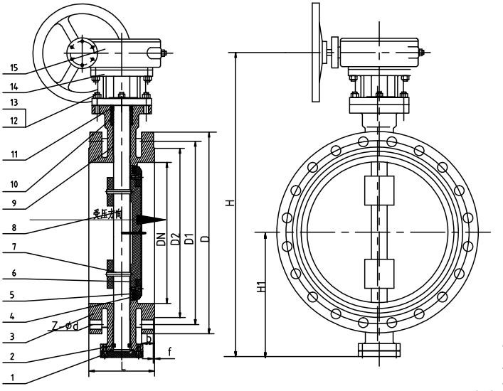
| 零件名稱 | 材料 | 零件名稱 | 材料 |
| 閥體 | 不銹鋼、鉻鉬鋼、合金鋼 | 閥桿 | 2Cr13、1Cr13不銹鋼、鉻鉬鋼 2205、17-4Ph |
| 蝶板 | 不銹鋼、鉻鉬鋼、合金鋼 | 軸承 | 奧氏體不銹鋼、304氮化 |
| 密封圈 | 不銹鋼與耐高溫石棉板組合成多層次 | 填料 | 柔性石墨 |


版權所有:博納斯威閥門股份有限公司 地 址:天津市寶坻區九園工業園5號路
版權所有:博納斯威閥門股份有限公司
地 址:天津市寶坻區九園工業園5號路